杭州 Spiral Villa 别墅,静谧而温馨的空间
地下一层,地上四层和阁楼的大型别墅的改造项目。在现有状态下,楼梯和电梯被固定在角落,垂直关系被彻底打破。因此,为了加强上下层之间的关系,即在这里度过的家庭的关系,提出了该计划。

▲ 一层
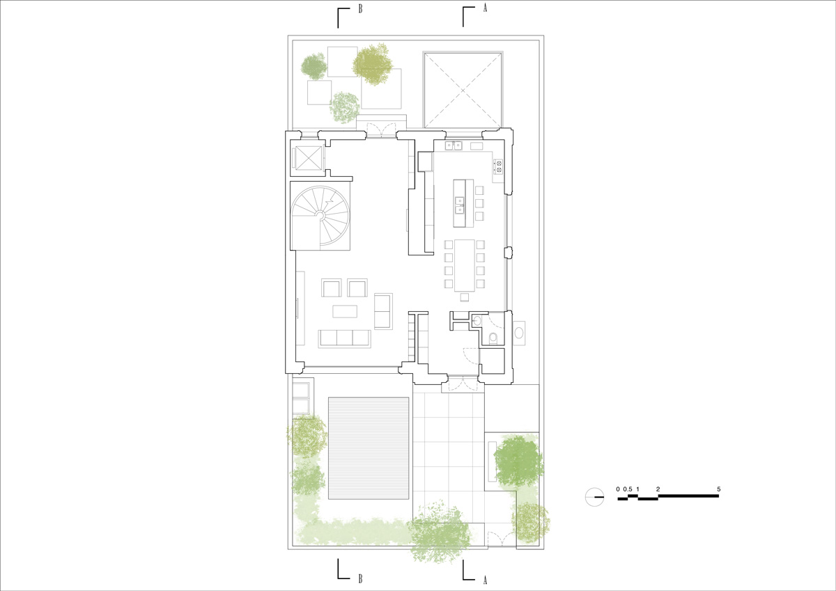
首先,我们将作为垂直运动的重要元素的楼梯作为一种象征性存在,将其移动到平面中心附近,并安排一个具有强烈向心力的螺旋楼梯,以便可以在每层楼的任何地方看到它。接下来,为了吸收更多的光线并加强上下层的关系,将二楼的楼板拉出,在客厅上方设计楼梯间。北部花园部分的楼板也被做成一个下沉的花园,为地下室带来了充足的日光。





▲ 一层


▲ 地下一层
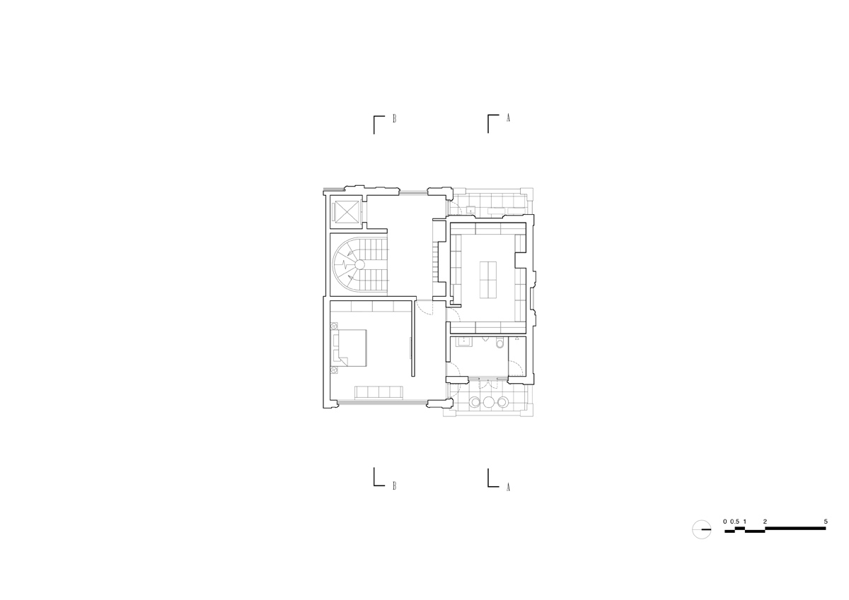
3楼做了儿童房的区域,面向螺旋楼梯的宽敞空间被设置为儿童区,并设有带缓冲的榻榻米垫。在窗户和墙壁旁边我们设计了一个个壁龛形式的小“房间”,以便孩子们可以自在的玩耍并舒适地读书。



▲ 三层
阁楼被设置为丈夫和妻子的工作室,并且屋顶被部分移除设计天窗,以便更多的天空光可以进入房间和螺旋楼梯。由于无法确保高度,因此现有的梁结构暴露在所有天花板上,并且空调通过沿外周壁覆盖墙壁来隐藏落地式空调。在晚上桌子上安装的间接照明柔和地照亮天花。









▲ 阁楼
我希望别墅不仅能够在别墅的每个楼层进行交流,而且希望通过使家人意识到螺旋楼梯的强烈的形式来使交流变得更容易,并加强精神上的联系。





▲ 螺旋楼梯

▲ 一层平面图

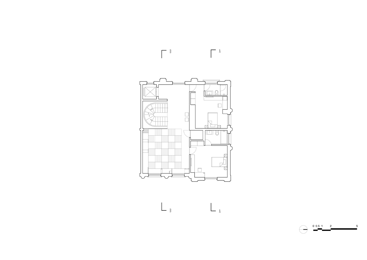
▲ 二层平面图

▲ 三层平面图

▲ 四层平面图

▲ 地下一层平面图

▲ 阁楼平面图

▲ 屋顶平面图

▲ 剖面图A-A

▲ 剖面图B-B
项目类型:别墅改造
项目面积:744.5㎡
项目地址:中国 杭州
项目设计:堤由匡建筑设计工作室
设计团队:堤由匡、史维维(实习生)、前雇员
照明设计:Ljus Design (石冈真己子)
机电设计:北京东洲际技术咨询有限公司(石川星明、竹林克宣、山崎隆司)
项目施工:杭州蓝匠装饰有限公司
空间摄影:Sensor見聞影像
项目竣工:2020年5月
好设计网 www.haoooo.cn 欢迎投稿:infohaoooo@163.com
好设计网 www.haoooo.cn欢迎投稿:infohaoooo@163.com
