J+生活艺术馆,丰富、自由、俏皮的艺术空间
项目坐落于苏州,建筑外立面及室内的整体改造面积约为2000m²,是一个多功能的综合体,具体可分为产品展示区、办公区、会所体验接待洽谈区。项目改造前的店面是普通的老旧式单一功能性展厅,给这个品牌塑造一个全新的店面形象和构架一个出类拔萃的生活艺术馆是首要的任务。




▲ 外立面
建筑的外墙改造,延续原有建筑结构的力量与节奏感,选用耐候钢板自然形成的锈纹和无缝拼接的工艺,铸造成一个独特的建筑雕塑体,从室外延伸到室内构架成整体的空间。尽量拆除原有室外墙体裸露出建筑骨架;增强构造穿插和引入自然光线,使室内更为开放,从而加强展示效果,让室内外融合的更为舒适自然,采用开放式的平面布局,可以使人在空间中走动时更为流畅舒服。

以苏州庭院假山石为内容营造出传统山水意境,或许太过具象的绘画容易抢夺产品的展示效果,所以选择较为抽象的表达形式,给阅者带来无尽的遐想。层层叠叠的构造穿插和原有裸露结构的结合,形成了丰富、自由、俏皮的空间层次。







主通道旋梯部分的球体装置成为整个空间的点睛之处,悬挂在半空中的球体,让空间旋律更为丰富,营造神秘感,意念延展无尽。





建筑构架延伸到室内后与其他的松散形体黏结在一起,形成近似半成品的剪纸雕塑空间,能从不同位置或漏透缝隙中看到不一样的产品展示区域,起到有效控制空间整体性的作用,便于以后分散区域的产品更换和完善。利用构架和剪纸塑造出来的空间总是感觉缺乏一些内容;似乎显得过分理性了,继而沿用锈板材质设计一个自由交叉的线性装置,使空间的构成更具有灵动性。




苏州总是让人不由自主地想到人文传统、精致生活,意识里第一时间跳入我脑海中的是竹的编织元素。通过艺术团队反复推敲,凌乱的线条装置;如草书的飘逸砂笔,又或许是秋野中的一堆干稻草,自然而亲切,点缀和柔化了空间。





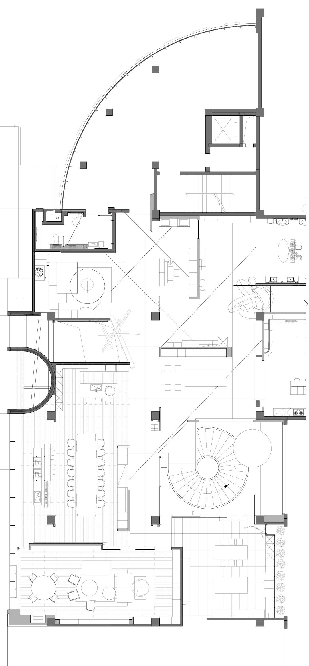
▲ 一层平面图

▲ 二层平面图

▲ 室内模型

▲ 室内模型

▲ 室内模型
项目类型:艺术馆
项目面积:2000 m²
项目地点:中国 苏州
设计方:纬图设计
主创建筑师:赵睿
设计团队:李龙君、黄志彬、刘方圆、何静韵、瞿群英、林灼鑫、张伊
施工方:曹林团队
合作方:席行千
厂家:AnPuSheng, Dulux, shanghai Tongxing
委托方:J+构架生活艺术馆
项目年份:2019
好设计网 www.haoooo.cn 欢迎投稿:infohaoooo@163.com
好设计网 www.haoooo.cn欢迎投稿:infohaoooo@163.com
