西安阳光城文澜府售楼处,东情西境
长安超过了长安
成为人们心目中的理想国
成了一座神一样的城市
——王小波
盛唐时期的气吞寰宇,强盛的国力支撑起的这份浩荡胸襟,赋予了长安城强大的包容力与自信心。千年后的西安也是如此,吸收新文化的同时始终保持着自己惯有的风格,这种力量让这座城市焕然一新、鲜衣怒马。
KOYI以“东情西境”的现代简约手法匠造了全新的空间理念,西安阳光城文澜府售楼处便是代表作之一。建筑将传统的砌筑手法抽象提取到立面中,也启迪了室内打破传统的设计格局,利用镂空、各色纹理打造黑白灰的渐变,创造更紧凑的立体效果。

烟火一瞬亦昌盛 东情西境与共情
入门的那一刻,便能感受沉淀千年的文脉气息在简约的空间里流动,大气、沉着,随处不在。

中空细密的纹路按古典的样式彼此交织,让人联想到古都巍峨的砖砌宫墙。不减自然光线的轻盈,反而给立面增加了若隐若现的闪耀微光。

围绕着沙盘区上巨大的悬浮灯饰,这面中空的墙体反射创造出一个微妙的语境,时空仿佛有了古今的通联,令人遐想。

细看接待前台屏风玻璃,同样雕刻了各式各样的纹饰,光影斑驳下,前台的大理石沉稳如山。历史如电影般正在一幕幕无声的跳跃着,一帧一故事,西安故事涌心头。



谈笑风生尽于此 清雅絮语藏百态
西安是丝绸之路的起始点,凝集经久不衰的传奇故事。谈笑风生间温习过往辉煌,岂不妙哉。



洽谈区将空间优化体现的淋漓尽致,公共活动空间形成开放式的结构以便能够容纳更多的人流。空间的曲折使得视觉纬度及想象空间更为延展和开阔。

整体空间以低纯度呈现,白色主体天花与深灰色地砖把空间维度切割得更加分明。西安城墙内掩映下的未燃尽的古老烛火,幢幢如影,留存在水吧区里无声诉说。


白日光辉相和着粼粼水光,让沙发区偶得一览窗外的景色。散落得有序的红色雕塑、古砖红皮革与灰色亚麻相间的沙发,无声的活跃着交谈气氛。

拾千年不解情缘 装泾河岁月袖囊
纵观三千年历史,西安一直秉承着周秦汉唐的文脉,KOYI受古长安的文化影响迸发出新灵感,结合历史传承以新概念设计了古今合一的泾河书院。



静谧素雅的阅读区域,古砖红的皮质沙发成为了点睛之笔。在长安,读懂的不仅是历史,更是人生。内心的不疾不徐,才是面对浮世、庸常、忙碌的最好方式。


无痕的岁月,将见证的笔墨深藏在安静的角落。偷得浮生半日闲,原来偷的是心里那份悠然。


微风闲看古人心 流年急景性情在
唐太宗李世民著诗《望终南山》:“重峦俯渭水,碧嶂插遥天。”


景观楼梯如小径通幽,又似登高望远。移步异景,给人一种轻盈温柔、舒适幽静之感。正所谓云深处缱绻诗行,水墨间清韵流淌。


在阳光城文澜府售楼中心邂逅一场东情西境的西安文化碰撞之旅。荫蔽庭院,树木葳蕤,草木青绿,且向西安寻风雅。长安的岁月在历史中,在文化上,润物无声的熏陶着。
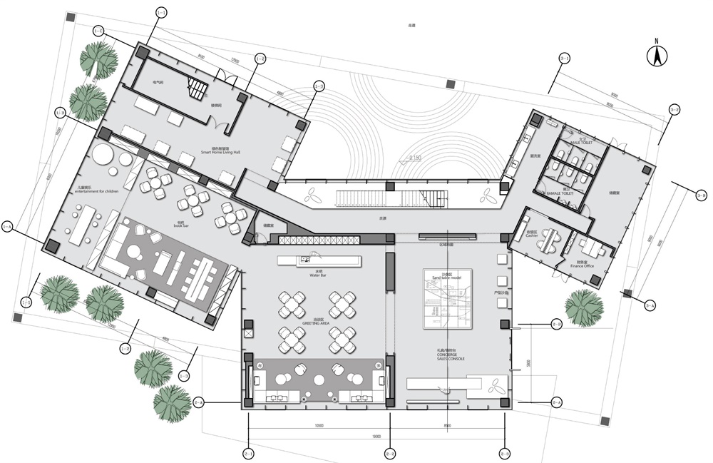
▼ 平面图 1F

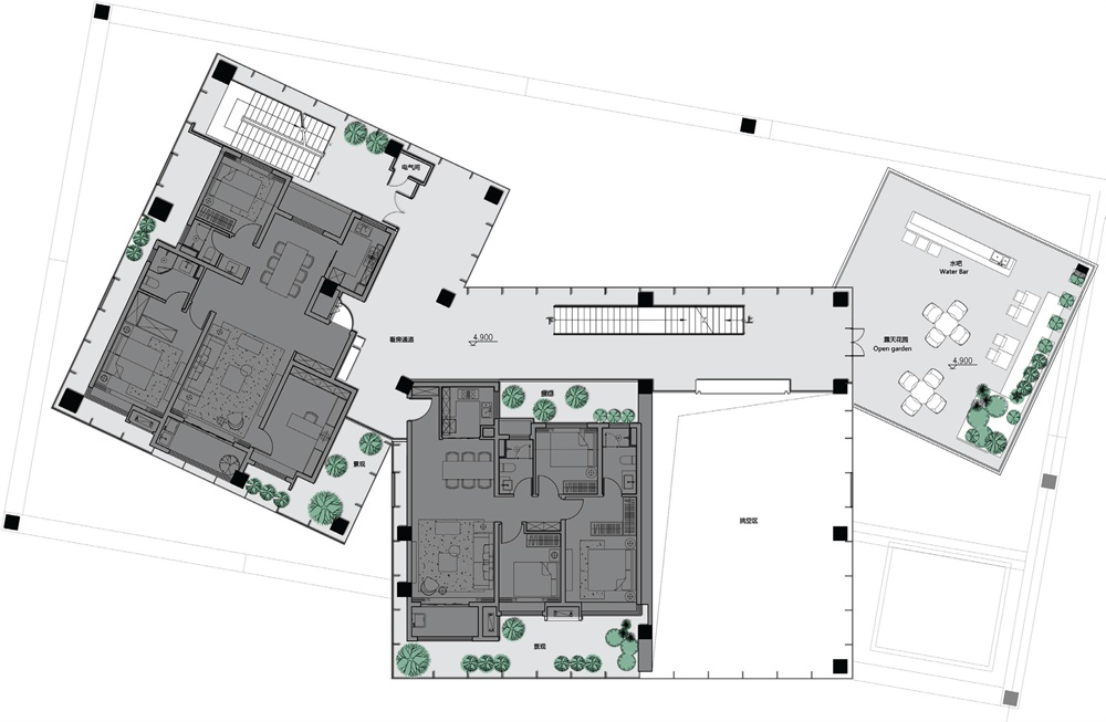
▼ 平面图 2F

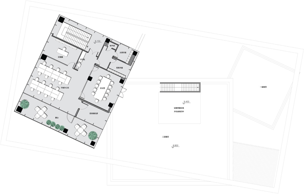
▼ 平面图 3F

项目名称:西安阳光城文澜府售楼处
项目面积:700㎡
硬装设计:上海柯翊建筑设计有限公司
设计团队:周晟、盛晶章、刘慧
软装设计:IF DESIGN 羽果设计
摄影摄像:一千度视觉
甲方信息:阳光城集团陕西区域公司
完工日期:2019年12月
好设计网 www.haoooo.cn 欢迎投稿:infohaoooo@163.com
好设计网 www.haoooo.cn欢迎投稿:infohaoooo@163.com
