厦门竹坝256民宿接待房屋,营造南洋风情

鑫龙郡装饰 / 中国 厦门
2020-01-15

项目位于厦门市同安区东北部,地处竹坝南洋风情景示范景区内。在设计之初,即定调为南洋风情、国贸文旅民宿示范单位,作为参观接待及后期规划样板。

1.jpg

2.jpg

原建筑为自建民宅返租,结构及外观都不能进行调整,因此在室内的设计上,尽可能的利用室内空间,以功能引导平面。同时,要在紧迫的设计及施工时间内,尽量平衡设计效果及施工难度。

3.jpg

4.jpg

5.jpg

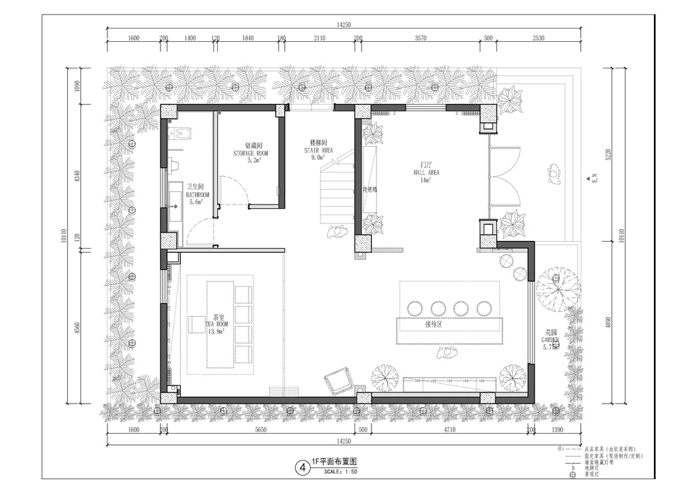
一层主要功能为接待茶室,其中一个茶室为了满足私密需求,采用夹藤玻璃的折叠门做为区隔。二层为餐厅,且在挑空位置增加了墙面开口,原本封闭的二楼与一楼空间产生了对话空间。三层为民宿示范套房,配置卧室及客厅,可以满足私人接待及小型会议功能。

6.jpg

7.jpg

客人在进入空间后,便能沉浸于营造的南洋风情之中,隔绝外部的繁杂。墙面米黄色肌理与地面花砖拼块;竹编灯具与藤艺家具;随着空间的不断探索,能感受不一样的体验。

8.jpg

9.jpg

10.jpg

11.jpg

12.jpg

▼ 平面图

13.jpg

14.jpg

15.jpg

项目名称:厦门竹坝256民宿接待房屋

项目面积:约292.3平方米

项目地点:厦门市同安区竹坝新村

设计公司:鑫龙郡装饰工程有限公司

主创团队:肖光辉(主创设计师)、柯新琴、杨丽鹏、许宝洪、纪锦洋

空间摄影:周志春

好设计网  www.haoooo.cn      欢迎投稿:infohaoooo@163.com

好设计网  www.haoooo.cn
欢迎投稿:infohaoooo@163.com