圣彼得堡功能齐全的顶层公寓,简约而舒适

INT2 Architecture / 俄罗斯 圣彼得堡
2019-04-25

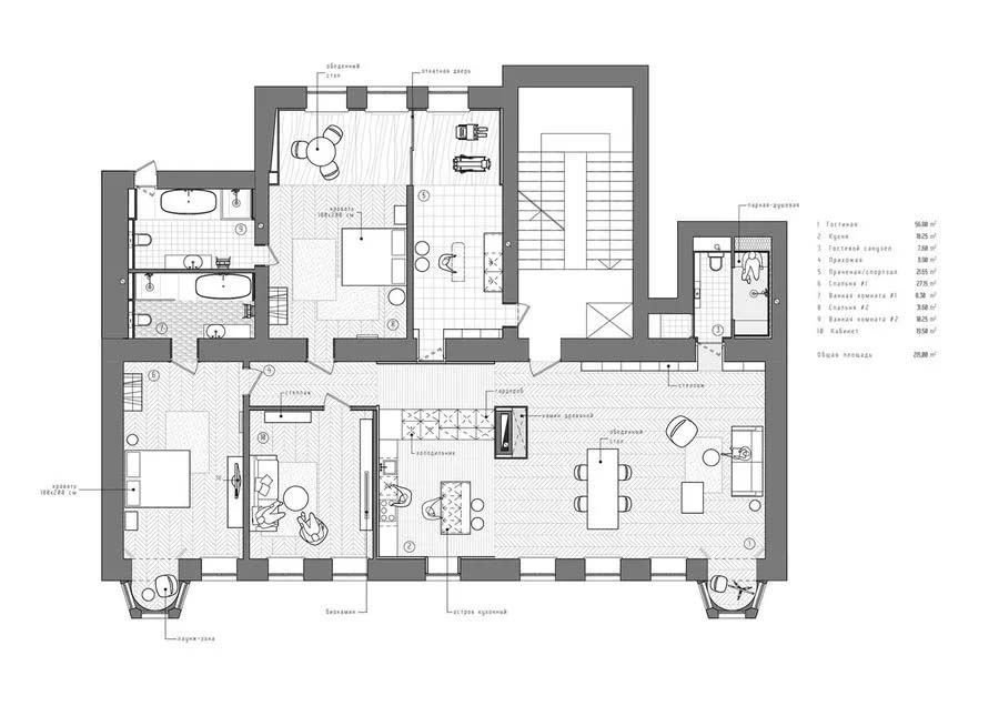
这间公寓在俄罗斯圣彼得堡,享有Griboedov Canal运河的景致,位于一栋建于19世纪初的公寓楼的顶层。该建筑采用“折衷主义”的风格,由不同的建筑师反复重建和完成。

1.jpg

2.jpg

3.jpg

设计师的主要任务是为居住在国外的业主偶尔居住,创造一个功能空间。因此,有舒适的公寓:有两间独立的卧室,浴室,共用厨房-起居室,书房,洗衣房和蒸汽浴室。

4.jpg

5.jpg

6.jpg

7.jpg

8.jpg

9.jpg

10.jpg

11.jpg

12.jpg

13.jpg

14.jpg

15.jpg

16.jpg

17.jpg

18.jpg

19.jpg

20.jpg

21.jpg

22.jpg

该项目的主要思想是使用简单的颜色和纹理处理空间的方法,在墙壁和天花板的绘画中使用深色调,各种纹理的木材,水泥瓦和瓷器的组合。

好设计网  www.haoooo.cn      欢迎投稿:infohaoooo@163.com

好设计网  www.haoooo.cn
欢迎投稿:infohaoooo@163.com