Go Eat Tapas餐吧,西班牙式的绚丽及活力
tAMINN Design / 台湾 新竹
2015-09-02
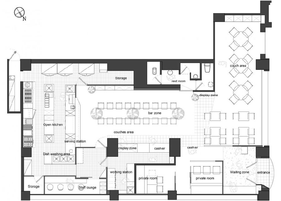
Go Eat Tapas DINING BAR 体现西班牙式的绚丽及活力,期望这样的室内设计不只赋予灵感,并且能将色彩丰富的tapas融入其中,和朋友或是家人在这样的环境氛围中能尽情放鬆、聊天、享受。秉持著设计理念的坚持,从细微处便以不凡的视角观察,将感官释出的讯息作为设计要素,改变介于空间感及功能性之间的关键体现在线条、材质、光线和色彩,只要懂得「观察」就能创造出独一无二的作品。















Go Eat Tapas DINING BAR便是以这样的理念诞生,透过形状、光影及deco搭配,白天能感受阳光洒入的鲜活;夜晚则置身于灯影交错的慵懒,打造出俐落具生命力的西班牙式手工艺。
好设计网 www.haoooo.cn 欢迎投稿:infohaoooo@163.com
好设计网 www.haoooo.cn欢迎投稿:infohaoooo@163.com
