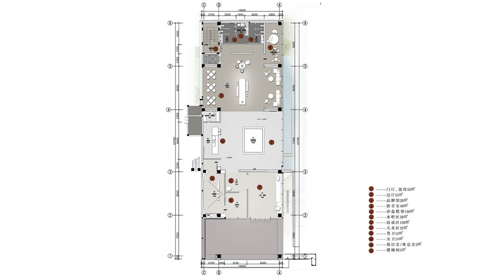
宜昌 大家 · 晴川明月生活馆,巴楚情韵的人居空间
位于三峡门户之地的宜昌,自古圣贤名流往来频繁,历代文人雅士居于此地,形成了多源交融的文化面貌。大家·晴川明月项目位于宜昌西陵主城区的核心地块——樵湖岭,以其先天的地理优势,在繁闹的市区寻得一处安逸,以城市发展为契机,打造赋有巴楚情韵的人居空间。


整体设计以黑白为基调,利用当代语境勾勒出巴山的缱绻与楚水的潺湲。黑白灰在材质的对话间铺展而开,大面积的几何意象和动情的细节阐述,构建出不同区域里沁人心脾的美学场景。空间布局虚实结合,在写实和写意间,设计出赋有韵律的动线,为行走和驻足留下余地。

从形式感强烈的门廊步入接待门厅,明晰的光线带来敞阔的视觉感受。玻璃一侧的当代画作与分裂状圆弧形雕塑,组成一幅当代的泛舟意境。



过厅格外富有诗意,在深色钛金墙体前,光束宛若天水,垂落千丈,磐石筑起的磊块生长出一颗苍劲的树枝,利用当代美学语境,呈现出明月下坚韧不凡的东方品质。


影音室在过厅内侧,柔软的材质和弧形屏幕,为视听提供高质体验。

进入沙盘区,不同几何体块抽离叠加,传达出空间的点线面关系。地面保加利亚灰大理石沉稳素净,细节纹理均匀,疏密相间,与贝壳杉木墙面的缜密肌理,以及夹丝玻璃的明透细腻,相互映衬,利用不同灰色的明度关系,递进出材质间轻重缓急的秩序和韵律。


墙体上沿将浅色U型玻璃以阵列布局,在透明和磨砂中权衡出清秀挺拔的高雅质地。吊顶灯具散落的光点,在晴川明月间,宛如繁星般璀璨。水吧台墙面一侧安置镜面不锈钢,空间仿佛在此肆意扭曲,随性自在。

洽谈区通过中轴区域的暗色布局和两侧浅色的素雅形态,使空间几何结构得到延展。


深色钛金天顶与保加利亚灰大理石结合,增强了视觉中要,产生中轴对称的形式美感。在中心,摆设了浅色大理石长桌,如同时光停滞,音韵和谐。


清新绿植点缀其中,为黑白画面注入舒然的简雅气息。





顶端的独立沙发背景墙面,利用黑镜暗涌的低声浅吟,反射出点滴盈透,增强视觉纵深。两侧浅色洽谈区域敞亮明净,使整体更具张力。










多功能室位于二层一隅,相对私密的位置提供了特殊的商谈休憩空间。以浅灰色为基调,细部陈设加入黑白元素,呼应主题。墙面一端以弧形构造,微弱的包裹感别具一格。




黑白涟漪,是楚水和巴山的写意。大家·晴川明月售楼处,以交融并序的地方文化为脉络,以和谐的空间音韵为索引,将当代设计语言解构重组,创造出浸润巴楚情韵的人居空间。

项目名称:宜昌大家·晴川明月生活馆
室内面积:870㎡
项目位置:中国 宜昌
业主单位:宜昌大家置业有限公司
设计公司:GFD广飞设计事务所
设计总监:叶飞
设计团队:陈成西、丁玲丽、杨捷、上官福豪
软装团队:方瑶、侯萌葳、郑梦莹
陈设单位:千渡家居
项目撰文:汤子
空间摄影:余几美学
完工时间:2021.4
好设计网 www.haoooo.cn 欢迎投稿:infohaoooo@163.com
好设计网 www.haoooo.cn欢迎投稿:infohaoooo@163.com
