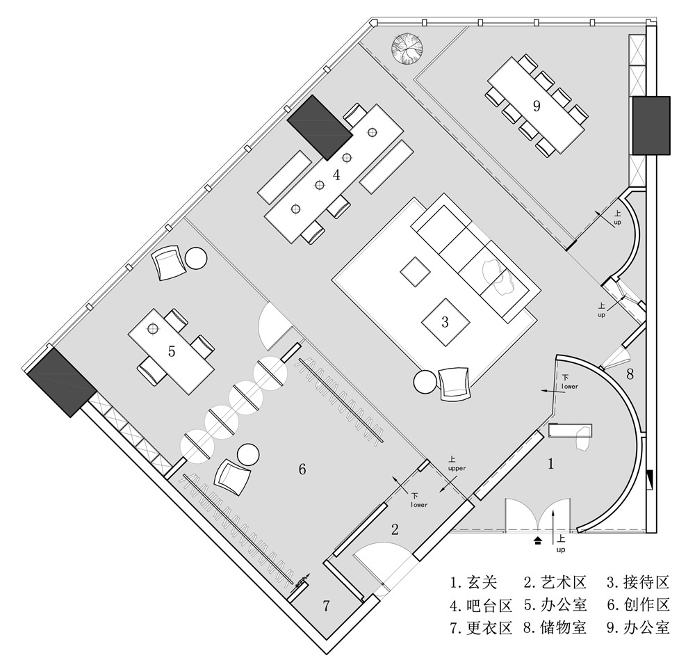
广州富力盈泰办公室,现代穹顶的人文叙事
自包豪斯以来,现代主义思潮席卷了人类生活的方方面面,古典时代的荣光一去不复返。如何让逝去的历史精华在现代社会延续新生,是一个有趣的话题。
富力盈泰办公室项目,是一位旅美回国的年轻设计师,创办的高定婚纱工作室。这个传统手艺与现代设计交融的产业,激发了设计师的创作灵感。
设计师李名津将文艺复兴时期经典的穹顶结构进行现代主义演绎,在当代都市办公楼里,暗藏一首人文主义回响的十四行诗。



弧线之美
穹顶是文艺复兴时期最具标志性的建筑结构,见诸于欧洲大陆的各大教堂。作为天圆地方认识论的现实产物,穹顶代表着天空与神圣。
围合式的穹拱造型,极具几何之美,擅长制造沉浸式氛围,让建筑延伸出内在精神性,与现代设计的理念貌离而神合。


富力盈泰办公室项目原来的户型设计非常直白。人站在门口,即能一窥空间全貌,无法满足创意工作室的空间需求。
受穹顶的弧线造型启发,设计师在门口做了一块弧面墙,用曲线对抗现代办公楼的工业感。弧面墙加上品牌展示墙,划分出了空间层次,造就曲径通幽的动线与美感,并构建一个展示品牌与产品的门面空间,工作室的定位一目了然。


品牌展示墙后方,是创作区与展示橱窗。
新鲜出炉的作品可以在这里得到展示;模特儿演示作品时,品牌墙与弧面墙动线构成了一个小型T台,形式美感与功能兼备。


穹顶意象
工作室的面积不大,设计师用玻璃作为隔断,构成不同功能空间的独立性与完整性,同时最大限度地保留了空间的通透感。


每当夜幕降临,玻璃面反射窗外的天光景致与车水马龙,繁华大都市的一个个完整切面映入眼帘。在安静悠然空间氛围中,人与环境的关系获得了最大的和解,人文主义的诗意浪漫油然而生。


棉麻沙发、实木座椅、怀旧气质的PJ椅,设计师希望将更多天然质朴元素融入都市生活,对抗现代性的机械与冷冰,触达人心最柔软的部分。



通往会议室的五分之一穹顶拱门,是整个空间的点睛之笔。穹顶设计既是为了缓解空间犄角之势,又构造了一个颇具古典意象的室内景观。
设计师用艺术涂料呈现逼真怀旧的金属质感,在质朴水泥墙的映衬下,产生一种时光重生的错觉。让人联想起圣索菲亚大教堂恢弘的金色穹顶,极简几何的造型又一下子将体验者拉回现实,恍惚之下,意趣横生。


借用玻璃面的反射原理,穹顶的完整面貌展露出来。
古典时代的神魂,在夕阳底下熠熠生辉。仿佛梦回文艺复兴时期的修道院,一场直通神性的对话正在展开。


秩序叠韵
质朴厚重的水泥风墙面,延伸至办公室内的柜体,强调自然原始的质感。粗犷的材质与精致的都市生活方式,形成颇具戏剧性的对照,提升空间张力。
设计师借助传统设计的“留白”手法,收纳柜上下方留出空间。既强化了结构的立体感,又有一种后退延伸的视觉效果,空间感更加深邃。



用一扇扇黑色旋转门作为隔断,灵活地划分出两个空间。办公室与创作区既相互独立,有需要时又能互通为一。富有层叠韵律的墙板,就像是教堂里秩序井然的高柱,赋予空间精神层面的仪式感与神圣美感。
每当举办小型发布会,模特儿通过门洞穿梭如鲫,从创作间到办公室,再到圆弧造型墙、穹顶背景墙。整个办公室化身为T台正中央,沙发区与会议室,便成为这场沉浸式表演的头等观看席。



项目名称:现代穹顶的人文叙事 · 广州富力盈泰办公室
项目面积:130m²
项目地点:广州
设计公司:名津设计
主案设计:李名津
参与设计:李栋金、庄坚荣、廖审
软装团队:西緹设计
施工公司:颐合施工
主要材料:玻璃、艺术涂料、微水泥、钢板
空间摄影:赵彬
竣工时间:2020年9月
好设计网 www.haoooo.cn 欢迎投稿:infohaoooo@163.com
好设计网 www.haoooo.cn欢迎投稿:infohaoooo@163.com
