北京Muee牧壹餐厅,“质朴的窑洞”
2020年夏天,一个朋友找到我们,他选好了一处地点,想做一个餐厅,把湖南老家的土火锅介绍到北京来。餐厅的地点位于北京东城区和平里航星园,二环往北一点点,在一个办公和老旧小区混杂的大院里。原来的空间是一个闲置的库房,一层多柱,二层较高,空间的南北两侧有着致密的片墙和大窗户,南侧的窗外有一棵老槐树。



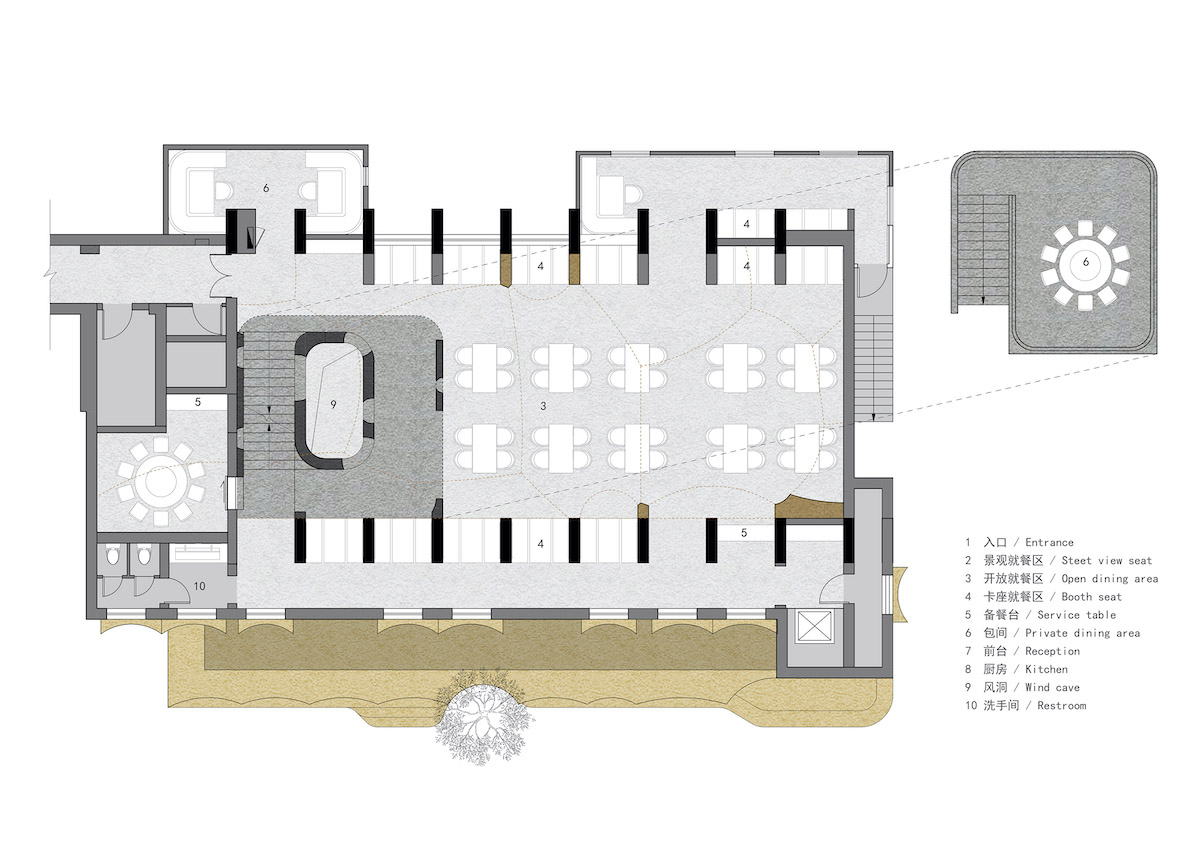
▲ 餐厅一层
土火锅的容器是陶土的砂锅,对于想象中餐厅的状态,朋友这样描述:“一个质朴的窑洞式的土火锅;在最初始的状态吃着用最简单的方式“煮”出来的食物,感受食材的原有味道”。在这样一个特殊的命题之下,我们也希望能够寻找一种回到本源的空间处理方式,并着眼于连接食物、饮食器具和人们在特殊环境中的饮食体验的角度展开构思。




▲ 餐厅二层
早些年在北非的旅行体验中,我们拜访过撒哈拉北部绿洲中的人们所居住的白色和土黄色的房子,线条简单而且修边浑圆,多用拱形和弧形的处理方式,给人一种质朴、洞穴般的感觉。“洞穴”作为人类最初居住的场所,形成了人类记忆中最原始的空间体验。我们希望能够将这种最初始的身体经验带入到土火锅餐厅的设计中,从而能够得到“质朴的窑洞”般的空间场景。

一系列的空间操作构成了寻找“窑洞”的过程,由于空间的南北两侧有致密的片墙,所以我们从片墙之间的空间关系开始探索。首层空间连续的筒形拱作为主要空间语言,从建筑内部延展到建筑之外,形成了入口处连续的门廊和波动的立面效果;二层空间较高,筒形拱的单一方向性开始减弱,从内化网格逐渐演变成一个空间的叠加穹顶体系,从而形成了最终的“窑洞”空间形态,“天窗”的元素也被用来加强二层大厅中洞穴般的空间体验。



这个叠加穹顶的实现过程也非常有趣,由于规模较小而带来的成本原因,我们没有选择工厂预制的GRG模块吊挂,而是全部在现场由工人们手工完成。先在三维空间中确定每一个穹顶的中心点和它们的相交点;再根据不同的弧长做骨架券;之后将骨架券联系成空间网格并留出天窗位置;最后用薄木板形成一个个连续的穹顶表面。




垂直置入的楼梯间带来了上下两层的联系,这个多孔的连接体像是一个复杂的空间装置,作为首层视觉中心的同时也产生了挑空空间和二层夹层的平台。挑空区域位于服务台前方,设计中采用了镜面的顶棚处理方式,希望能够在连接体内部夸张其实际的空间高度,从而形成另一个垂直向的“洞穴”感受。二层夹层的平台空间作为集中就餐区使用,同时也提供了一个从高处接近“窑洞”的墙壁、以及俯视二层“窑洞”下的完整空间的体验。





▲ 通往二层楼梯



▲ 餐厅二层
首层空间中,在连续的片墙之间设置了就餐卡座,我们在保留原有片墙的连续韵律基础上,采用上下两种材料来减少垂直片墙对空间的压迫感。片墙的上半部是浅灰色面层,下半部采用和地面相同的水磨石砖墙裙,和卡座一起形成了深灰色的整体。餐厅的内外墙面采用了相似的面层材料,我们通过放大其颗粒状和粗糙感,来加强对“初始”和“窑洞”的身体感知,同时也能够带来与饮食器具的陶土材料之间的联系,形成味觉、触觉和知觉的一致性。










项目名称:北京牧壹Muee餐厅
建筑面积:580m2
项目地址:北京
设计单位:MAT超级建筑事务所
设计团队:唐康硕,张淼,刘友鹏,贺宁彦,陈湘讯(实习)
空间摄影:金伟琦
项目业主:北京牧一餐饮管理有限公司
项目时间:2020
好设计网 www.haoooo.cn 欢迎投稿:infohaoooo@163.com
好设计网 www.haoooo.cn欢迎投稿:infohaoooo@163.com
