长沙 “庆记鲍鱼鸡” 餐厅,刚硬之美

水木言设计 / 中国 长沙
2021-04-16

如果你能改变人们观看的方式,就有可能改变他们思考的方式。我们观察到,碎片信息爆炸和强调飞速发展的时代,人的感觉已被碎片记忆影响、控制,而当我们用清晰可感知的纯粹的形体,让人感受到整体并能自我渗透时,人们会体验到个体的鲜活和完整性,所以重回事件的“整体性感受”是这次设计初始的出发点。

▼ 室内空间概览

1.jpg

鲍鱼和鸡是中国人的传统美食,有着特别的烹饪方式,认为这两个食材是对人的健康是有帮助的,对于品牌选址的城市——中国长沙,离海很远的内陆城市,所以鲍鱼尤为珍贵,那对于鲍鱼生长的环境——大海,赋予空间的不仅是地域文化的移植,更是面对一片海的辽阔、深远、纯粹与沉思,无论是有没靠海边生活的人们,海的语境总能与人共情,让人有无限想象的空间。

▼ 空间生成

2.gif

▼ 入口吧台

3.jpg

4.jpg

在传统文化里,宇宙、自然和人可以是合成一体的,三者可以等于一,一是万物的起始点,有一生二、二生三、三生万象之说,所以对于设计的表达,虽然是纯室内空间,我们希望空间的顶面、立面、地面是一个整体,它的界限是模糊的,它合成一个整体,犹如海天一色的连接和纯粹,当人步入已完成的这个空间时,因为界限的模糊和层次的变化,人们对于空间大小的判断都会超出实际面积,这也是能在“小中见大”的人的整体观。

▼ 入口旁的弧形卡座

5.jpg

6.jpg

▼ 材质搭配

7.jpg

这些海浪般翻卷、叠加的形体,随着步入产生位移与变化,并划分出前厅、就餐区、吧台、包房等功能区,弧形引导人逐步往里探索,弧形的卡座区、中央水吧台、架空的包房,因在不同区域设置不同的功能,丰富了空间的层次和流线。

▼ 中央水吧

8.jpg

9.jpg

▼ 开放用餐区

10.jpg

▼ 内含不同功能区

11.jpg

▼ 透过墙上窗洞看就餐区

12.jpg

而这抽象的形态,则构建出和谐、宁静、活力、刚硬的美,释放出人们在各自生活戏剧中曾经体验到的感情震荡,再次重拾对自然、世界的向往和热爱。当人们面对这样一个尺度的空间时,在就餐之余希望能产生这样的思考,空间将指向何处?人会走向何处?生命会走向何处?

▼ 丰富的流线型天花板

13.jpg

14.jpg

15.jpg

特别值得一提的是对于建筑内部空间的改造,这是一个多次被重复利用的空间,经历过非常多的业态,不同的业态在离开后留下的空间的结构和痕迹都不一样,原空间本身又是临街面很窄,进深很长,结构柱立在厅中,原来就做过的夹层和厨房等投资方希望能再次调整利用等一些不利因素。

▼ 旋转楼梯通向二层

16.jpg

17.jpg

▼ 二层平台

18.jpg

▼ 从二层看一层公共空间

19.jpg

重新梳理过的空间利用收银台、水吧台、夹层等功能的设置形成由外而内的“分段式”空间,以避免一览无余过于直白造成空间失去神秘性。部分柱体被消化在水吧台及墙体里,形成一个看上去无柱体的空间。

▼ 二层包房

20.jpg

21.jpg

当我们有机会随机采访当地来体验的客人问他们的感受时,得到最多的回复是“这是一个让人惊喜的体验”。惊喜的言外之意是超出自己的一般性经验,而对于一个生活工作节奏很快的城市,客人平均就餐时间超过了70分钟,我们想这个可能是因为“整体性感受”让人能安静下来。

▼ 细部

22.jpg

23.jpg

24.jpg

25.jpg

26.jpg

27.jpg

28.jpg

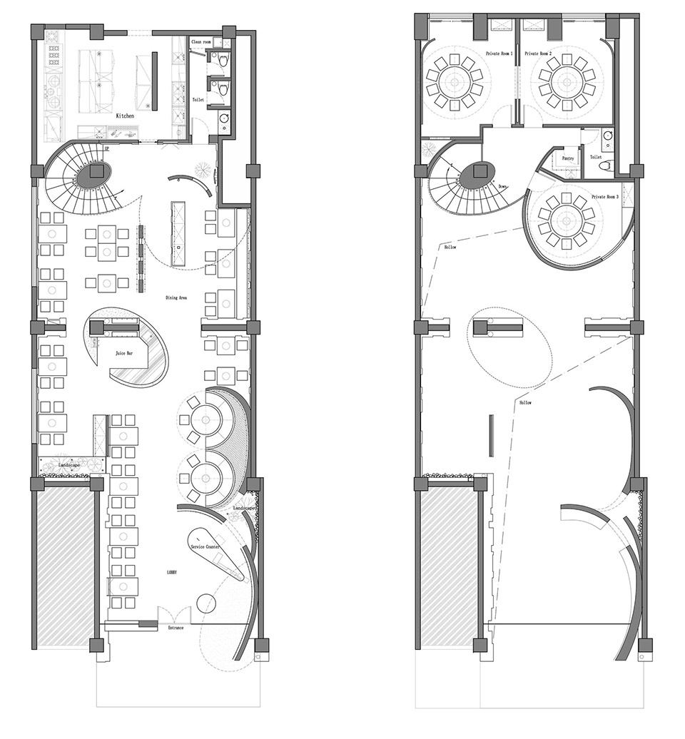
▼ 平面图

29.jpg

▼ 剖面图

30.jpg

31.jpg

32.jpg

33.jpg


项目名称:“庆记鲍鱼鸡”餐厅

项目类型:餐饮空间

项目面积:360平方米

项目地址:湖南省长沙市雨花区芙蓉中路三段327号

设计公司:水木言设计

主创设计:梁宁健

设计团队:李新丽、孙飘

设计编辑:金雪鹏

主要材料:微水泥、金属板、木饰面、火山石、麻石自然面、岩板

空间摄影:廖鲁


好设计网  www.haoooo.cn      欢迎投稿:infohaoooo@163.com

好设计网  www.haoooo.cn
欢迎投稿:infohaoooo@163.com