金地江山风华城市艺术中心,打造环游式院落
设计的思考点不断游离于从民族到文化,从地域到城市,从环境到建筑之中。
雕塑感体块通过错动与穿插手法组合,来突出当代建筑的纯粹和有机,形成具有当代美学特征的建筑群组。我们将用地面积近一万平方米巨大而复杂的建筑体量拆解为若干个洗练简洁的几何体量,以有序的方式重构,与广袤无际的环境背景相融合。

▲ 体块构成
设计拒绝了传统建筑中完全中轴对称的形制美学,而是采用一种非对称的均衡,从而体现出更贴合草原气质独有的动态的稳定和离散的群落感。

▲ 插画 - 胡瑾

超尺度的建筑体量,9米高的柱廊,12米高的门堂,百米长的视觉图腾墙, 都呼应了草原的辽阔和地域性格的豪迈,给人以由远及近不同尺度上的震撼感。


两横三纵的建筑形式恰到好处地界定出前、中、内三个空间界面,清晰有序,通过院落与界面的重塑,营造回廊,打造环游式院落。我们利用金属格构来实现对空间可视而不可达的有效分隔,营造出收放有序、层次渐进的空间氛围。金属格构是通过截面100毫米x100毫米的不锈钢方管,以60公分的方型矩阵模式插接在一起,分为前中后三个层次的立体空间格构架,三层金属框架互为支撑龙骨,达到稳定而精致的效果。





▲ 金属格构

▲ 金属格构
建筑的文化性都体现在设计中对大量隐喻方法的运用:蜿蜒连绵的立体大地景观,长短相间的十字型金属格构元素,采用586块天然石材肌理还原的千里江山图卷……都希望能留给参观体验者更多可感悟、可解读、能共情的元素。








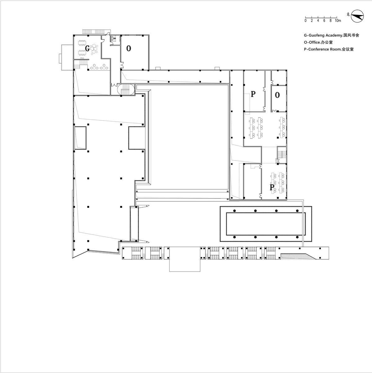
▼ 一层平面图

▼ 二层平面图

▼ 屋顶平面图

▼ 西立面

▼ 剖面图

▼ 入口剖面

▼ 窗剖

▼ 墙身大样

▼ 墙身大样

项目名称:金地江山风华城市艺术中心
建筑面积:2700平方米
用地面积:10200平方米
项目地址:呼和浩特赛罕区呼伦贝尔南路与帅家营交汇处
设计方:PTA上海柏涛
主创建筑师:余小雷、张立夫
设计团队:冯梓航、王昕、袁峥、孙淼、丁传武、张素文、刘佳宜、左鹏、王翔、蔡健、梁金慧
室内设计: 上海意嘉丰
景观设计: 安道设计
施工方: 辽宁龙泽建筑科技集团有限公司
主要材料:芭拉白石材、仿铜不锈钢、山水白玉石
材料商:辽宁龙泽建筑科技集团有限公司
空间摄影:Shrimp Studio须然摄影 邬涛
项目业主:金地集团东北区域
设计时间:2019年4月-9月
完成时间:2020年5月
好设计网 www.haoooo.cn 欢迎投稿:infohaoooo@163.com
好设计网 www.haoooo.cn欢迎投稿:infohaoooo@163.com
