重庆方木中古精品店,不期而遇
不曾在预料之中的事情,总是充满未知与惊喜。

遇见
当方木中古的主理人(李志夫妇)带着项目找到我们的时候。我对“中古”这一概念还不曾有过一个较为完整的认知。如何做好一家中古店,如何传递中古背后的故事与价值,尤其如何削弱“中古”的舶来品意味而增强本土文化特性的在地融合,在中古店中呈现新的场景与范式,是我认为最值得深思且有趣的过程。
▼ 门店外观

中古
“中古”一词来源于日本。在日本文化中,“中古”是“二手”的意思,但又与“古董”的概念有所区别。具体来讲,“中古”指的往往是那些旧的、被使用过的,但又非常经典、值得收藏和使用的产品。日本是中古包市场最为盛行的国家。这归功于上个世纪七八十年代,日本经济飞速发展,国际奢侈品名牌大量涌入日本市场,并迅速被消费。这种奢侈品消费的现象也引发了二级市场的流通,即多数人会在使用过一定的周期后,把已不再时尚浪潮之尖的奢侈品包包进行二次的置换,又或是直接处理给二级流通市场,这就像一个追逐的游戏,并形成了一个迭代向下的循环。从而形成了如今庞大的中古市场。正因为此,本土市场对中古的消费以及由此形成的中古文化,有着自己的解读。中古虽未达到古董的认知概念,但也远远超过了普通二手的认知,它依旧代表着某种有生命力的生活品味和生活方式,在这层意义上,中古与二手已然是截然不同的两个概念。于是,这就回到了消费者层面的思考。如果,中古的定义如此的微妙,那么,我们该以何种的姿态,去呈现一个内地还前所未有、市场认知还并不成熟的中古店呢?
▼ 门头细节

▼ 门店立面

空间
既然,国内消费者对于中古的认知也介于二手与古董之间,又无法将中古奢侈品拉下物质的神坛。那么,在保证空间趣味性的同时,品质感需要得到一定的保证。要吸引他们走进来,坐下去,形成空间文化的感召力。退后的门头便是这样的思考逻辑,友善的空间关系,让过往的行人有了走进来的欲望。
▼ 后退的门头

▼ 户外转角座位

▼ 入口细节

而后的长廊,并未放置过多的产品。这是为了神秘感的营造。而这样的营造,只为让你充满好奇的再进一步。
▼ 入口长廊

▼ 门厅区域

▼ 地面和天花细节


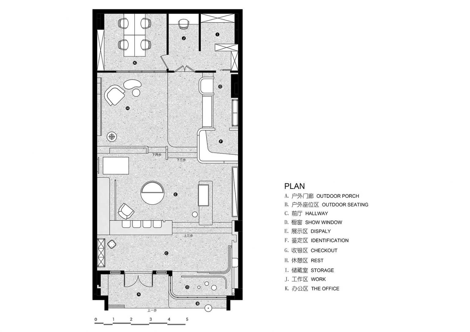
抬高的地台,让空间的层次与趣味得以保证,且在地台的位置设置了主要的产品陈列区。高高在上的奢侈品包包正是迎合了消费者们的心理。
▼ 产品陈列区

▼ 陈列架和柜台

经过抬高的陈列区之后,下沉的空间被分成了三个组成部分。最里面的空间为办公及仓储的功能。靠右的区域则是吧台及维修检验区,满满的仪式感,则暗示着这些来自欧洲的名品昔日的辉煌。而吧台对面则是宽敞舒适的休闲品鉴区。
▼ 吧台及维修检验区

▼ 休闲品鉴区

选择
正如主理人选择这些中古产品一样,中古店的核心并非有多少的货源,而是在众多的中古产品中,挑选出那些精品无暇的尖货。恰到好处,正是方木的内核。室内亦是如此,在软装、艺术品、乃至装饰物料的选择上,我们也一直秉承着恰到好处的选择方式,化繁为简的处理手法。
▼ 室内细节

同时,不期而遇的主题概念,不仅指向消费者与中古产品之间的关系。也是我们整个空间设计的精神核心,这种不期而遇的状态更像是两个时代的碰撞。又或是两种设计语言的对话。老旧的中古产品在这里会遇见新的主人,重获新生,与另一个时代的产物迸发出新的火花。而传统的、古典的设计语言也会在这个当下与现代的、更加简练的设计语言产生新对话。我们便是选择用这一设计语言对整个空间进行重塑。
▼ 传统、古典的设计语言与现代的、更加简练的设计语言产生新对话



首先,在装饰形式上,我们将西方古典元素用于功能性的结构设置之中,比如门窗、橱窗、隔断、吧台、陈列等区域。而在空间结构的重塑上,则大量运用到现代、干练的处理手法。从某种意义上讲,这两种处理手法的逻辑关系一定是矛盾且冲突的。而我们却极力想要把这种矛盾与冲突放置在一起,我们希望这两种语言能真正的产生某种有意义的对话。时代向前,也并非是遗忘过去,我希望用我的方式去重新审视。所以,精致的木作、线条、造型也可以与裸露、简洁的水洗石、墙壁共处一室。而这样的状态是不违和的,甚至有种奇妙的味道。
▼ 玻璃隔断

▼ 柜台材料细节

其次,在软装的选择上我们摒弃了统一风格产品扎堆的处理方式。而是以一个买手的姿态去挑选适合的家具产品。从Franco的Tre pezzi扶手椅,到Jean Royere的大白熊,再到当代传奇设计师Philippe Starck的经典三足椅。无一不是向经典致敬。而flos的灯具与cc-tapis的地毯则是当下产品设计中的典范。我们将其整合在一起,在这个既冲突又奇妙的空间里,趣味横生。
▼ 休憩区

▼ 家具细节

最后,我想用空间中,当代艺术家庞茂琨先生的画作《不期而遇》作为结语。不期而遇系列,是庞茂琨先生对于文艺复新时期的一种回想,即是传统的继承与研究,又是新时代的延续与探索创新。他以自己的身份去看待古典与当代的发展结合。而这正与中古店的设计思考不谋而合。我们作为设计者,也在用自己的视角看待这个产业、消费关系与建筑载体。发展,本身就不止是向前看,有时候,回回头,就会有不期而遇的美好。
▼ 《不期而遇》

▼ 设计手稿


▼ 轴测图

▼ 平面图

项目名称:方木中古
项目类型:商业空间
项目面积:128平方米
项目地址:重庆市渝北区北部新区湖映路300号附1号3-11号
设计公司:重庆简璞装饰设计有限公司
主创设计:文超
软装设计:文超, 杨旭, YSCASA
施工单位:璞造装饰
主要材料:水洗石、实木、质感漆、长虹玻璃
空间摄影:刘星昊
好设计网 www.haoooo.cn 欢迎投稿:infohaoooo@163.com
好设计网 www.haoooo.cn欢迎投稿:infohaoooo@163.com
