南山巴黎
2020-04-24
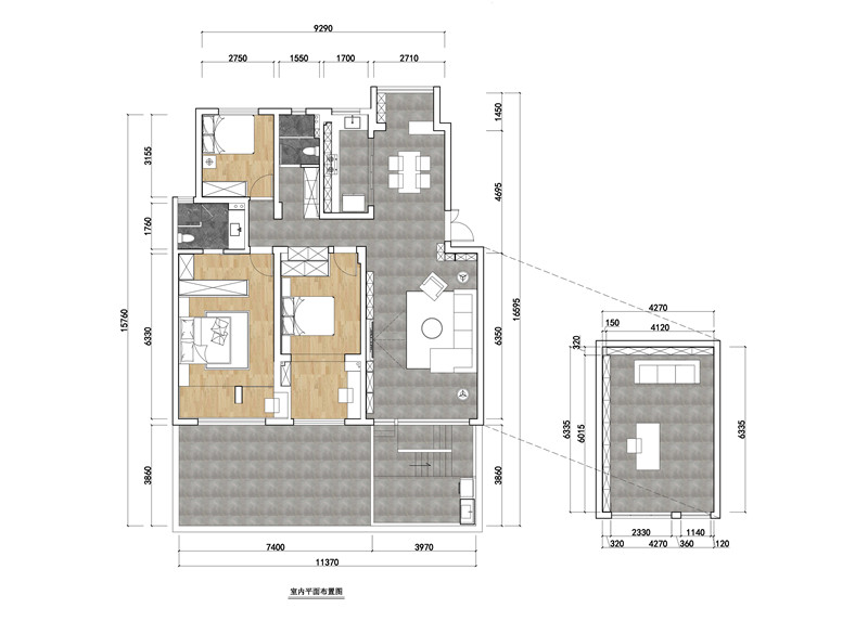
屋主这套为改善型住宅,因为置换急需入住,因此这套必然要在半年内全部落地完成,中间还跨越了一个春节(停工一个月),加上老小区非工作日无施工条件,好在江南的气候一直温润如玉,冬天没有极端的气温,因此说是五个月,其实在去掉一个半月的非工作日,硬是在三个半月的工作日中把这套犹如小别墅结构的房子拿下,其中木作大量作业,空调地暖新风样样齐全,其紧密的链接度,在这里着实要表扬一下工长的好脾气以及好手艺。
户型方面:
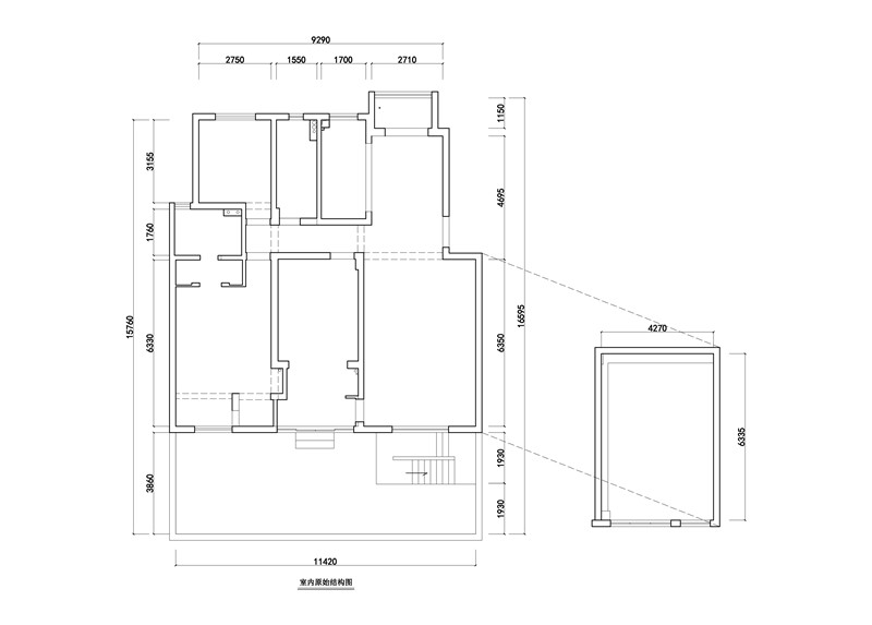
原始结构图 原户型格局还是不错的,南北通透
不足点: 进花园方式不理想,由次卧室进。
主卧靠窗承重结构住乱入,衣帽间格局不理想。


































项目名称:南山巴黎
项目面积:176平方
项目地址:南山巴黎印象
设计风格:现代简约
全案费用:60W
